Loading...

株式会社ほくとう|建設機械のレンタル・販売

株式会社ほくとう|建設機械のレンタル・販売

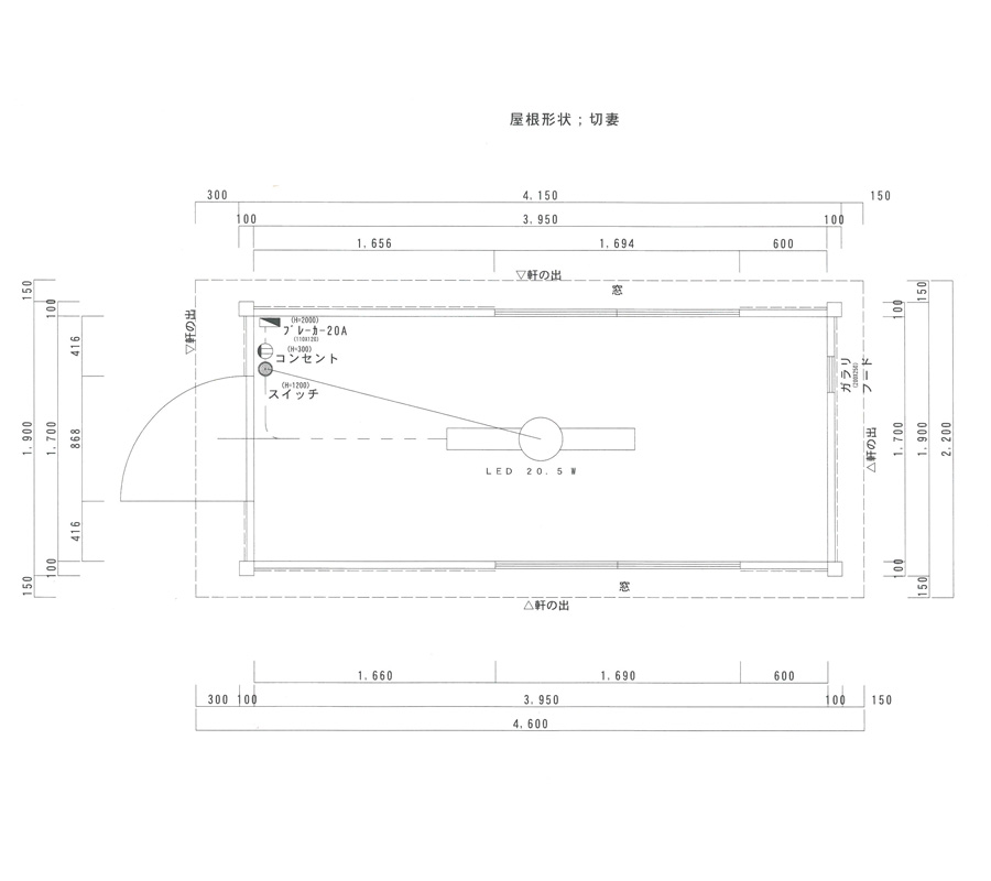
31型S切妻

【販売専用カスタマイズハウス】スーパーハウス 31型S切妻『新品販売価格¥1,749,000(税込み)』

商品案内 / ハウス・トイレ / ハウス

地域の産業を支える建設機械のレンタル・販売

お客様のお好みに応じて設計できます!
外壁・窓・ドア、用途に合わせて自由にカスタマイズが可能です。
※カスタマイズする場合は見積りが必要です。

■販売商品情報

商品名31型S切妻
商品展示拠点前沢展示場
価格(税込み)1,749,000円
お問い合わせ先お近くの店舗にご相談ください
●寸法
 正面(mm)2200(屋根を含む)
1900(屋根を除く)
 奥行(mm)4600(屋根を含む)
4150(屋根を除く)
 高さ(mm)2700

※仕様は予告なく変更することがあります。

仕様の詳細を見る